

























周辺はのどかで空気がよく散歩しやすい環境でありながら
浜松インター/浜北インター/イオンモール/ららぽーと磐田/プレ葉ウォーク浜北と車でアクセスしやすい立地です
周辺にはスーパーも多くJAファーマーズマーケットとも車でアクセスしやすいため便利♪
おひとり様もご家族様にもおすすめな物件です
| 物件名 | ティアラⅢ 205号室 |
|---|---|
| 住所 | 浜松市中央区笠井上町 |
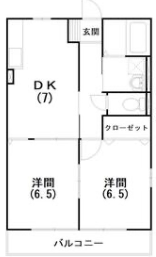
| 間取り | 2DK |
| 広さ | 47,77m² |
| 階数 | 2階 |
| 構造 | 軽量鉄骨/2006年12月 |
| 賃料 | 家賃56,000円+共益費3,500円 |
| 物件名 | ティアラⅢ 205号室 |
|---|---|
| 住所 | 浜松市中央区笠井上町 |
| 間取り | 2DK |
| 広さ | 47,77m² |
| 種別 | アパート |
| 構造 | 軽量鉄骨 |
| 階数 | 2階 |
| 築年数 | 2006年12月 |
| 賃料 | 家賃56,000円+共益費3,500円 |
| 敷金/礼金 | -/- |
| 初期費用 | 合計7,91万円(内訳:退去負担金7万円/鍵設定料6,600円/自治体入会金2,500円)) |
| 固定費目安 |
水道代:2,200円/月 町内会費:390円/月 駐車場代:2台目3,300(並列)円/月 |
| 駐車場 | 駐車場1台無料 2台目3,300円/(月)並列 |
| 設備 |
|
| 契約期間 | 普通借家2年年 |
| 物件掲載日 | 2026/03/12 (次回更新日は、物件掲載日より14日以内) |
| 物件備考 | 内覧のお問い合わせはお近くの不動産会社へお問い合わせ下さい。 その他費用については不動産会社へお問い合わせください。 |
| アクセス方法 |
|